Добро пожаловать на http://vipplan.ru

Випплан Осинники - это тысячи проектов домов в нашем каталоге!

Вы всегда сможете найти для себя проект дома вашей мечты! Даже если этого не случилось, мы готовы в любую минуту предложить проект индивидуального дома.

Забыли пароль?
Вы еще не регистрировались?

Перейдите по ссылке ниже на страницу регистрации.

Регистрация...

Внимание!!!

В проектную документацию могут быть внесены изменения любой сложности, в соответствии в Вашими пожеланиями!

Полезные статьи

Проекты быстровозводимых домов и коттеджей в Осинниках

Некоторые люди до сих пор считают, что быстровозводимые дома представляют собой безликие, недолговечные, однотипные строения. Эти утверждения не соответствуют действительности. На данный момент, строительные технологии шагнули вперед и дома «быстрого приготовления» считаются эталоном комфорта, уюта и даже выделяются, в архитектурном плане, на фоне дорогих кирпичных коттеджей. Быстровозводимые дома не дорогие и изготавливаются в кратчайшие сроки....

Где копать колодец?

Водоснабжение за городом - Осинники всегда было проблематичным. При отсутствии центрального водоснабжения остается только один выход – выкопать колодец. Водоносный пласт есть не везде. Как же определить, где копать колодец?...

Проекты домов и коттеджей > Каталог проектов домов > Одноэтажный дом Vg1225

Одноэтажный дом Vg1225

Одноэтажный дом
Зарегистрируйтесь

Проект № Vg1225


Техническое описание
Общая площадь: 80.84 м2
Жилая площадь: 52.59 м2
Высота здания: 6.42 м
Размеры дома: 9.54м×11.24м
Кол-во комнат: 3
Цокольный этаж: нет
Гараж: нет
Мансарда: нет

Kонструкция
Фундамент: Монолитная ж/б плита
Перекрытия: Деревянные балки
Материал стен: Бетонные блоки

Архитектурный раздел
Конструктивный раздел
АР+КР - 44 000 (Со скидкой 20%)
Срок подготовки проекта — 7 рабочих дней. Проект индивидуального одноэтажного жилого дома с размерами здания 9,54x 11,24м. Стены - деревянные панели. Цоколь - отделка камнем. Кровля - металлочерепица. Фундамент - монолитная ж/б плита (под всей площадью дома) Наружные стены дома: газобетонные блоки, экструдированный пенополистирол, деревянные панели. Внутренние стены и перегородки: газобетонные блоки. Пол первого этажа - пол по плите. Потолок 1 этажа - по деревянным балкам с использованием теплошумоизоляционных материалов типа URSA в межбалочном пространстве. Крыша дома двускатная. Перемычки - монолитные и сварные из профиля проката. Окна - металлопластиковые, выполненные по индивидуальному заказу.
Генплан застройки участка / Паспорт проекта 7000 руб / 10000 руб
Инженерный раздел (полный) 50000 руб
Смета на строительство 25000 руб
Теплотехнический расчет материалов стен Бесплатно
Стоимость проекта со незначительнми изменениями 52950 руб
Стоимость проекта со средними изменениями* 59100 руб
Стоимость проекта со значительными изменениями** 60700 руб

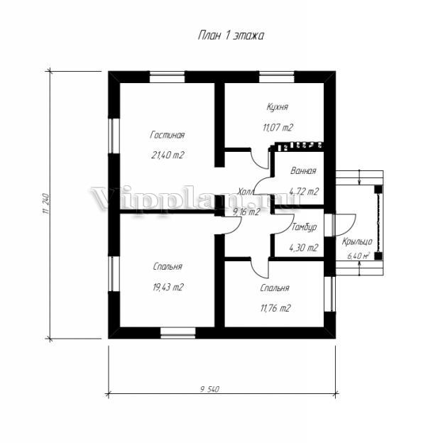
План первого этажа


Крыльцо — 6,40 кв м
Тамбур — 4,30 кв м
Холл — 9,16 кв м
Ванная — 4,72 кв м
Кухня — 11,07 кв м
Спальня — 11,76 кв м
Спальня — 19,43 кв м
Гостиная — 21,40 кв м
Одноэтажный дом Одноэтажный дом Одноэтажный дом Одноэтажный дом
Внесение изменений и привязка к участку строительства

В любой из проектов от компании VIPplan - Осинники по вашему желанию могут быть внесены изменения в материалы стен, материалы наружной отделки дома, а также будет произведена адаптация проекта под конкретный регион строительства (с учетом грунтов региона, геологических особенностей вашего участка и местных климатических условий) - БЕСПЛАТНО !!! (кроме проектов со скидкой и проектов наших партнеров).

Любой из проектов, размещенных на сайте osinniki.vipplan.ru мы можем выполнить из требуемых вам строительных материалов: ячеистый бетон (газобетон, пеноблок), керамоблок, кирпич, шлакоблок, бетонный блок, дерево (брус, клееный брус), каркасная технология (деревянный каркас, металлокаркас (ЛСТК)).

Фасад дома и его наружную отделку так же возможно выполнить с применением различных облицовочных материалов: структурной штукатурки, (с утеплителем и без), сайдингом (пластиковый или металлосайдинг), фиброплитами, кирпича.

 
6 Избранные
проекты

Доставка проектов по России: Москва (Московская область), Санкт-Петербург (Ленинградская область), Краснодар, Ростов-на-Дону, Ставрополь, Сочи, Волгоград, Новосибирск, Белгород, Брянск, Воронеж, Саратов, Хабаровск, Астрахань, Нальчик, Владикавказ, Екатеринбург, Тюмень, Самара, Нижний Новгород, Казань, Пермь, Уфа, Челябинск, Красноярск, Ханты-Мансийск, Иркутск, Курган, Оренбург, Омск, Томск, Барнаул, Новокузнецк, Кемерово, Абакан, Чита, Якутск, Южно-Сахалинск, Петропавловск-Камчатский и страны ближнего зарубежья: Белоруссия, Украина, Казахстан